Duo Fonctionnel
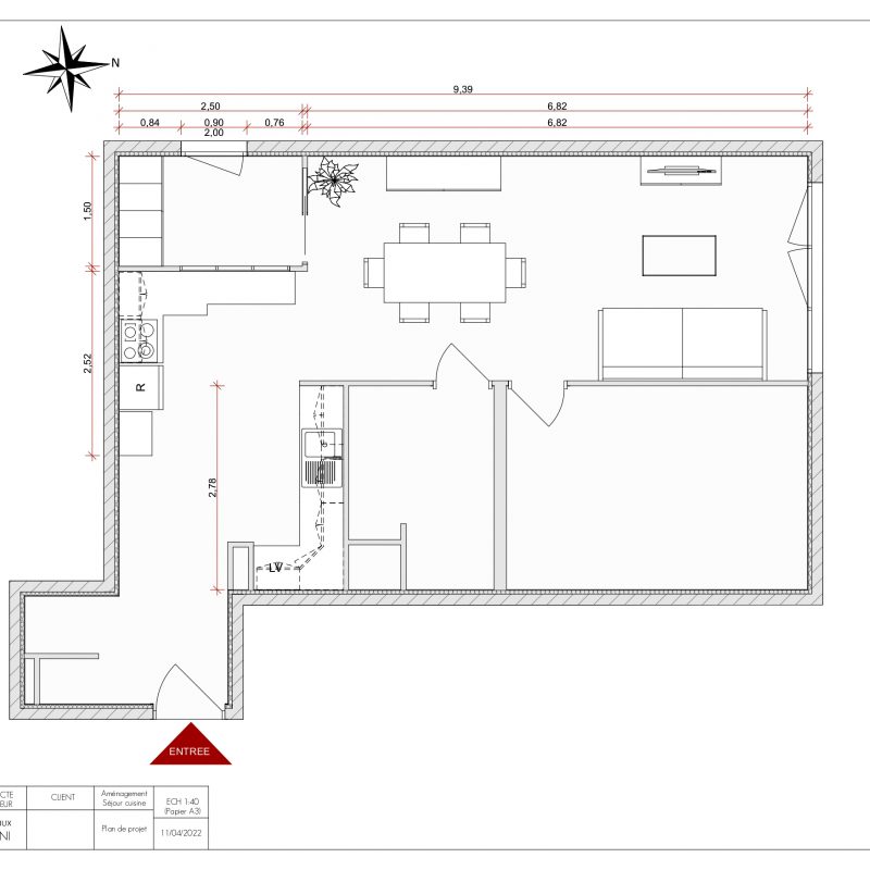
Ma cliente m’a sollicité pour concevoir une nouvelle cuisine dans son appartement. Avec un espace restreint et une cuisine située juste à l’entrée, le manque de rangement et d’espace pour cuisiner étaient des problèmes majeurs.
Étant donné l’importance de la cuisine pour ma cliente, elle souhaitait l’agrandir au maximum sans empiéter sur l’espace du séjour, tout en ajoutant une petite pièce de rangement.
J’ai conçu la cuisine en deux blocs, intégrant le second bloc grâce à l’ajout de la nouvelle pièce de rangement. Cette disposition optimise l’espace de manière fonctionnelle et logique, tout en préservant l’impression d’ouverture dans l’appartement.








